卓越城二期(南区)
房源编号:P039447  2024-06-26发布
虚假举报
31900元/月
单价 145元/㎡/月
关注

甲级

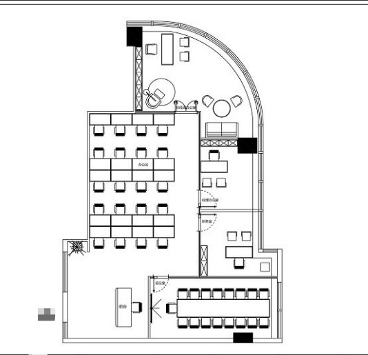
精装

220

面积

中层 北

共30层

视频房
类型 办公
建成 2015年
片区福田区梅林
产权 商品房(50年)
地址广东省深圳市福田区中康路126号地图周边
姚超
姚超
4000088500

楼盘详情

楼盘:
卓越城二期(南区)
开 发 商:
卓越置业集团有限公司
车位:
1954
停车费:
700.00元/月
供暖类型:
-
用水类型:
-
用电类型:
-
燃气费用:
-
房间描述该房源具体详情信息,请垂询联系该页面房源专属业务专员,我们将竭诚为您提供免费专业咨询服务。